BADOERE di MORGANO centro.
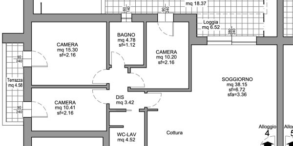
In palazzina di sole sei unità con poche spese condominiali, proponiamo questo quadrilocale posto al piano e ultimo piano.
Composto da: ampio living con cucina a vista collegato al terrazzo abitabile di 25 mq, due bagni e tre camere.
Garage al piano terra.
Struttura, impianti tecnologici, rifiniture e spazi interni concepiti per ottimizzare al massimo il risparmio energetico e il comfort abitativo.
Classe energetica A+.
Euro 295.000









