PREGANZIOL nord
Proponiamo in vendita intera palazzina indipendente di recente costruzione disposta su tre livelli fuori terra (più mansarda) oltre a piano interrato in una delle zona più interessanti a nord di Preganziol, a ridosso di Treviso.
L’immobile rappresenta un’interessante opportunità sia per investimento a reddito immediato sia per utilizzo diretto misto commerciale/direzionale/residenziale.
Composizione:
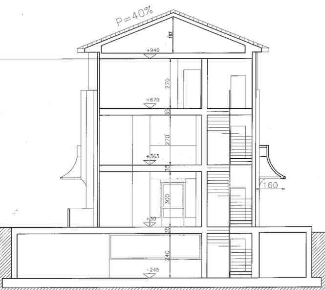
- Piano Interrato:
Autorimessa con comodi spazi di manovra, posti auto e magazzini. - Piano Terra:
Locale commerciale (negozio) con ottima visibilità, accesso diretto dalla strada e vari parcheggi esterni. - Piano Primo:
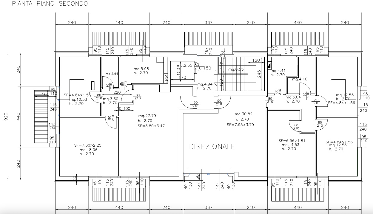
Spazi attualmente predisposti con possibilità di realizzazione uffici, ideali per studi professionali o attività direzionali. - Piano Secondo:
- Appartamento ad uso residenziale.
- Ambulatorio attualmente locato a studio medico con regolare contratto in essere, che garantisce una rendita di €900/mese.
Caratteristiche principali:
- costruzione del 2010 in ottimo stato manutentivo
- dotato di ascensore, aria condizionata in ogni stanza, pannelli fotovoltaici, aspirazione centralizzata
- spese condominiali coperte da produzione energetica autonoma
- spazi a norma per portatori di handicap
- ingresso garage securizzato da serranda motorizzata
- destinazioni d’uso diversificate
- facilità di parcheggio con vari posti auto
- ottima opportunità per chi desidera concentrare attività e eventuale residenza in un’unica struttura
Immobile versatile, adatto a investitori, professionisti o imprese alla ricerca di una soluzione indipendente con spazi modulabili.
Trattativa riservata.

































