MOGLIANO VENETO centro
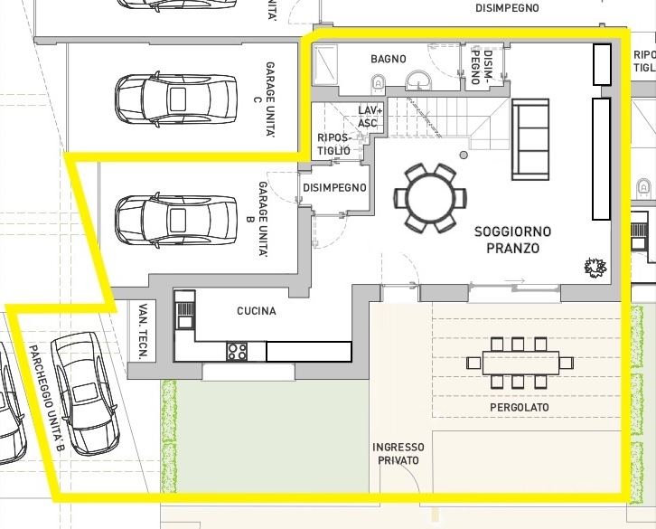
Villetta trifamiliare in pronta consegna!
Cercate efficienza energetica, sostenibilità, modernità senza dimenticare aspetto accogliente e sopratutto comodità ai servizi? Questa soluzione è un ottimo compromesso tra spazi giusti e comfort contemporaneo.
Punti tecnici:
Riscaldamento a pavimento, impianto fotovoltaico indipendente da 5 Kw, trattamento di aria primaria WMC, aria condizionata reversibile in ogni stanza, serramenti in alluminio-legno a raso muro, portoncino blindato, videocitofono, basculante motorizzato, pompeiana bioclimatica con faretti e impianto irrigazione. Predisposizioni domotica, antifurto, ricarica auto.
Piccolo scoperto piantumato.
Euro 520.000






























