MORGANO.
Villetta di testa di grandi dimensioni venduta al grezzo.
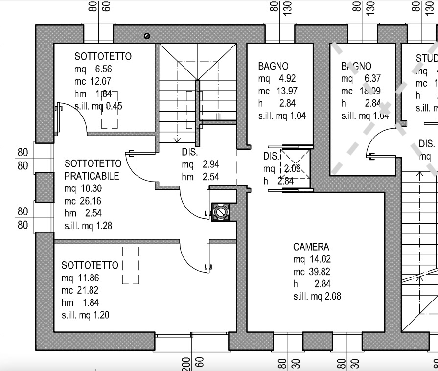
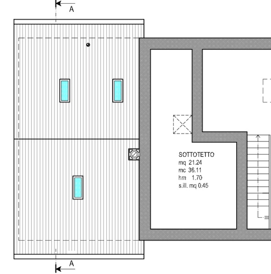
L’immobile si dispone su due livelli di 75 mq cadauno più la mansarda di 22 mq.
I travi a vista sulla zona notte rendono il calore e la storia delle case rustiche tipiche della zona.
Completa la proprietà la dependance a destinazione garage di 25 mq anche essa con la travatura in legno e il giardino di quasi 1500 mq.
Il tutto immerso in zona di campagna a 5 min dal capoluogo, da Istrana, Paese e Quinto di Treviso.
Euro 140.000



























